Kitchen Diner Extension
Our customer was adding on an extension to the back of their kitchen and wanted to create a modern style kitchen/dining room, giving their family a new hub to their home. They had some good ideas as to what style and colours they wanted but was open to alternative ideas in regard to product positioning.
(Originally, they requested a royal blue, but they changed their mind when viewing the samples and went for a lighter shade).
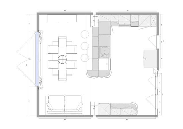
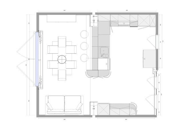
Drawings

2D Plan

3D Drawing - Birdseye View








